본문으로 건너뛰기
teamhitchhiker
  • Home
  • project
  • hitchhiker
  • team
서울특별시 서초구 서초대로 19길 10-20, 201
teamhitchhiker
  • Home
  • project
  • hitchhiker
  • team
teamhitchhiker

키움센터금천3호점

  • teamhitchhikerteamhitchhiker
  • 2021-07-13
  • public

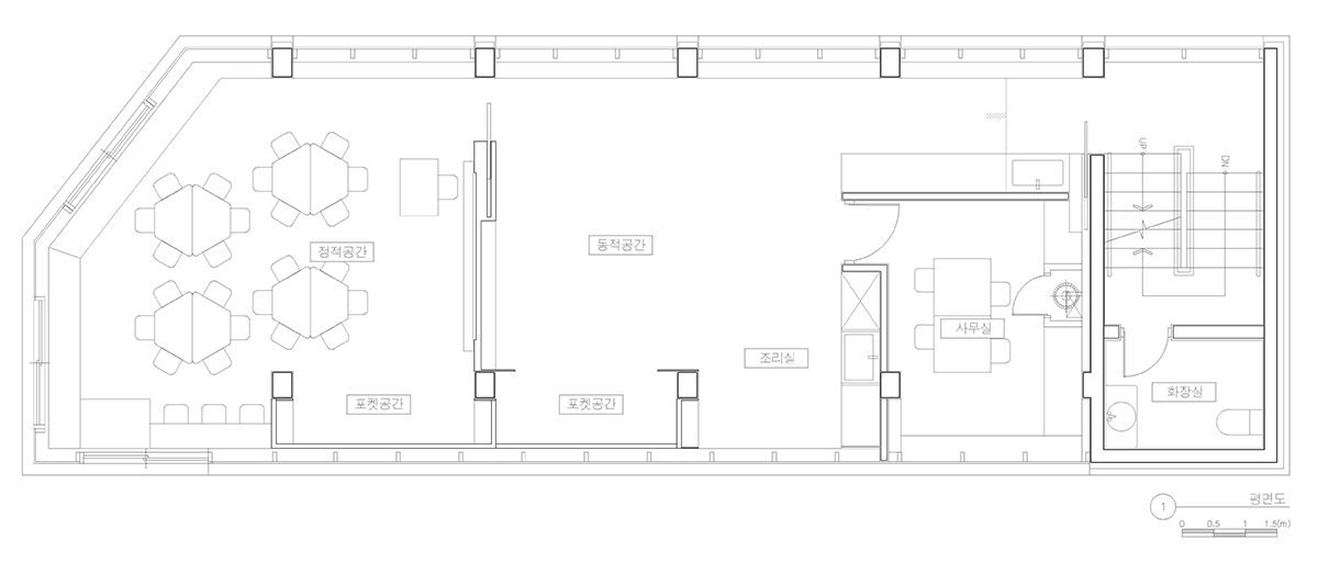
우리동네키움센터 금천3호점

  • 대지위치 서울특별시 금천구 시흥대로39길 46
  • 용도 우리동네키움센터
  • 면적 110.09m²
이전 글 키움센터금천2호점
다음 글 전시작업
  • Home
  • project
  • hitchhiker
  • team

Copyright © 2026 teamhitchhiker