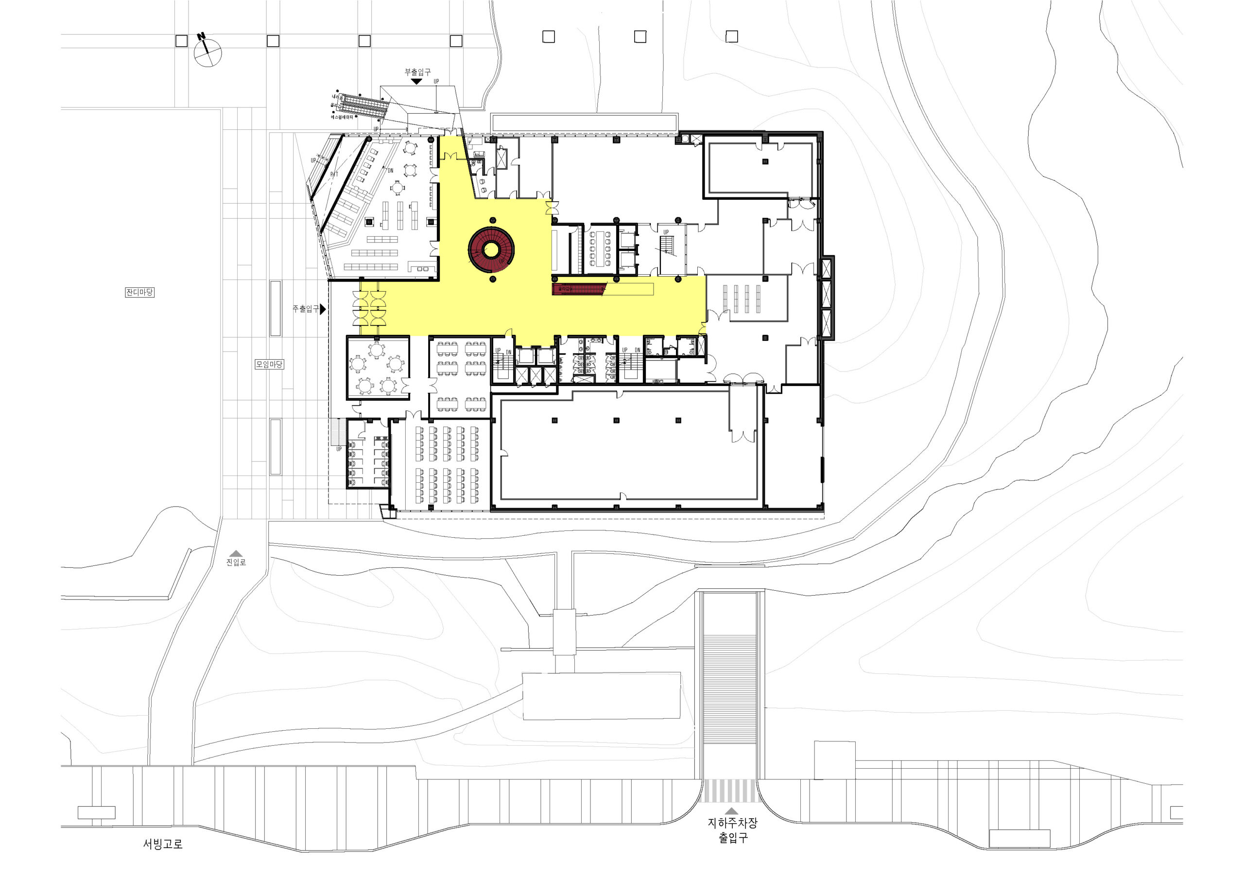
국립한글박물관 증축 제안teamhitchhiker2024-04-16미분류 국립한글박물관 증축 제안 입상작(5등) [1층 평면도] [4층 평면도] 대지위치 서울특별시 용산구 서빙고로 139(용산동6가)용도 문화 및 집회시설(박물관) / 증축-업무시설대지면적 285,990.7㎡건축면적 3,155.46㎡연면적 12,975.45㎡건폐율 18.26%용적률 40.79%규모 지하1층, 지상4층 이전 글 공주 봉곡리CAFE 다음 글 BOB Magazine No.236 댓글 남기기 답글 취소 이메일 주소는 공개되지 않습니다. 필수 필드는 *로 표시됩니다 이름 * 이메일 * 웹사이트 댓글 달기 * 다음에 댓글을 달 때를 위해 이 브라우저에 내 이름, 이메일, 웹사이트를 저장합니다.댓글 달기