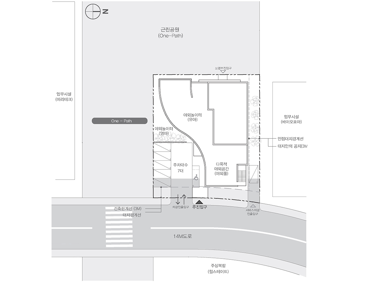
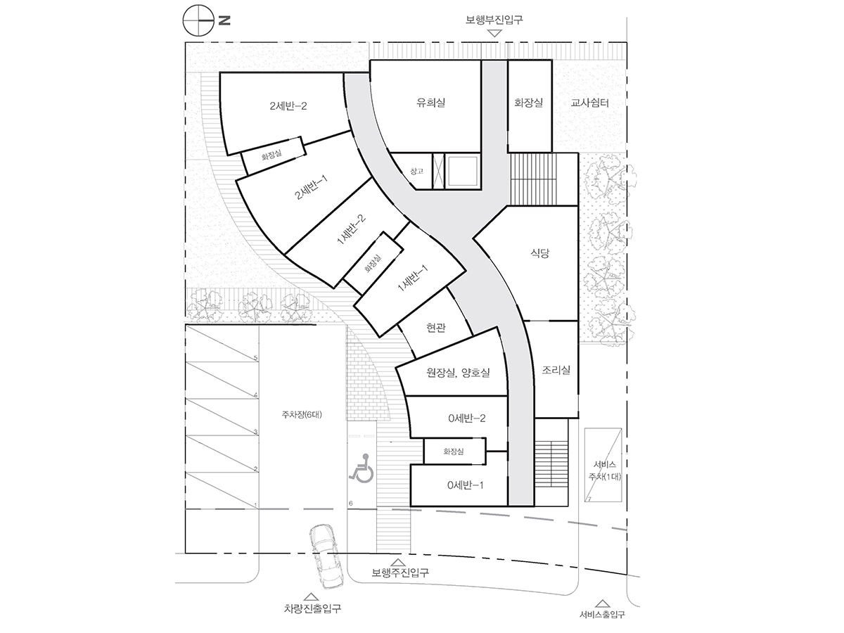
화성공공직장어린이집teamhitchhiker2018-10-12Competition 화성시 거점형 공공직장어린이집 제안공모 기타입상작(2등작) 대지위치 경기도 화성시 영천동 211번지 (복지시설1부지)대지면적 1,049 m²건축면적 566.49 m²연면적 1.377.36 m²건폐율 54.00%용적률 131.30%규모 지하1층, 지상3층공동작업 BSD 이전 글 검단1유치원 다음 글 FM Communications